ROZDZIELNIE
ELEKTRYCZNE
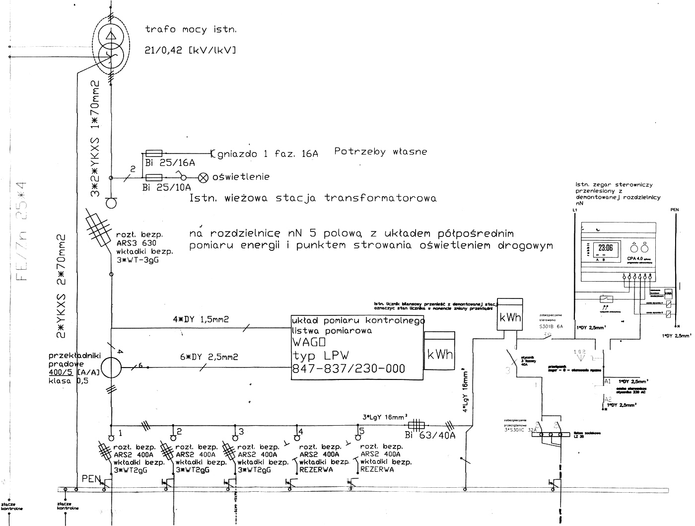
rozdzielnia stacja wieżowa RG n/n
RG n/n stacja wieżowa
Opis:
Rozdzielnia RG n/n jest montowana
w murze, jak i stacjach napowietrznych wieżowych. Rozdzielnia metalowa IP44,
w rozdzielni pomiar i sterowanie oświetleniem zewnętrznym.
Wymiary:

gabaryty zewnętrzne

  • szer. 150cm
  • wys. 120cm
  • gł. 25cm
Rozdzielnia spełnia standardy:
Schemat: rozdzielnia stacja wieżowa RG n/n

Elektromont "LECH"

Jacek Lech

Oleśnica Rataje; ul. Wrocławska 59a

tel. 071 314 46 86; kom. 601 805 767; mail: biuro@lech-elektro.pl


projekt, realizacja: Raf27.eu