ROZDZIELNIE
ELEKTRYCZNE
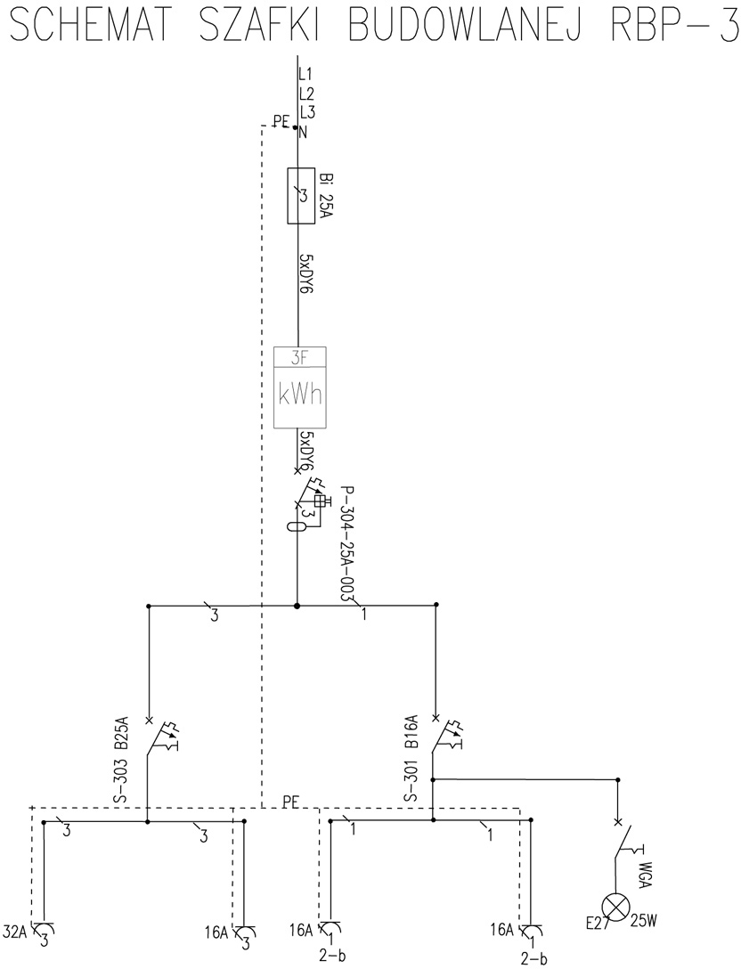
Rozdzielnia budowlana
RBP-3 / 25A - 63A
Opis:
Rozdzielnia budowlana z pomiarem na stojaku przenośnym plastikowa.
Wymiary:

szafka

  • szer. 40cm
  • wys. 60cm
  • gł. 25cm

stojak

  • szer. 70cm
  • wys. 65cm
  • gł. 50cm
Rozdzielnia spełnia standardy:
Schemat:

Elektromont "LECH"

Jacek Lech

Oleśnica Rataje; ul. Wrocławska 59a

tel. 071 314 46 86; kom. 601 805 767; mail: biuro@lech-elektro.pl


projekt, realizacja: Raf27.eu