ROZDZIELNIE
ELEKTRYCZNE
rozdzielnia STS nasłupowa
STS nasłupowa
Opis:
Rozdzielnia montowana na słupie,
lub obok przy transformatorze.
Wymiary:

gabaryty zewnętrzne

  • szer. 75cm
  • wys. 130cm
  • gł. 56cm
Rozdzielnia spełnia standardy:
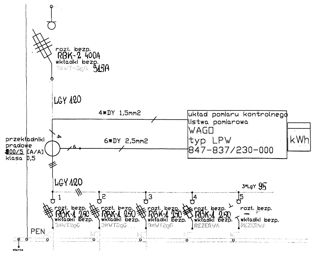
Schemat: STS nasłupowa

Elektromont "LECH"

Jacek Lech

Oleśnica Rataje; ul. Wrocławska 59a

tel. 071 314 46 86; kom. 601 805 767; mail: biuro@lech-elektro.pl


projekt, realizacja: Raf27.eu